NR Design, LLC
Floor Plan / 5100 SQ.FT
SECOND FLOOR PLAN
FRONT ELEVATION
REAR ELEVATION
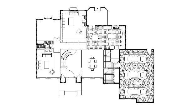
FIRST FLOOR PLAN
Garage
Family
room
Breakfast
nock
Kitchen
Dining
Room
Study
Living
room
Foyer
Open
To Below
Open
To Below
Bedroom#1
Guest
Bedroom
Master
Bedroom
Bedroom#2
Bedroom#3