NR Design, LLC
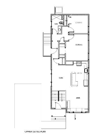
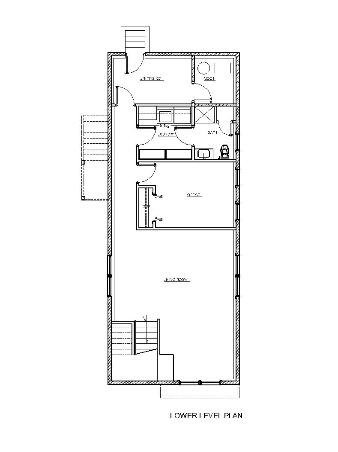
Floor Plan/ 2000 SQ/FT
Family
room
Kitchen
Dining Room
Guest
Bedroom
Living
room
L
aundry
Bedroom#1
Bedroom#2
U
PPER LEVEL
PLAN
L
OWER LEVEL PLAN
FRONT ELEVATION