




















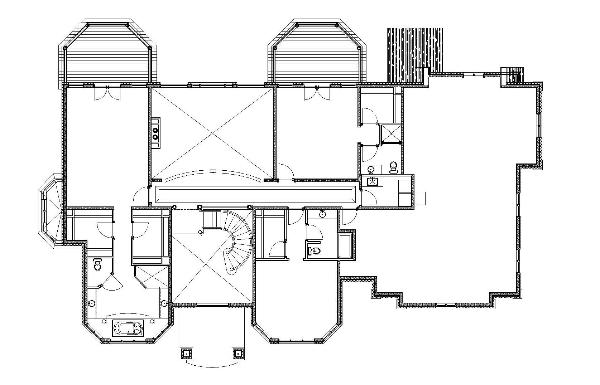
| SECOND FLOOR PLAN |
| FRONT ELEVATION |
| REAR ELEVATION |
| FIRST FLOOR PLAN |
| Garage |
| Family room |
| Breakfast nock |
| Kitchen |
| Dining Room |
| Study |
| Living room |
| Foyer |
| Open To Below |
| Open To Below |
| Bedroom#1 |
| Bonnus Room |
| Master Bedroom |
| Bedroom#2 |
| Deck |
| LEFT SIDE ELEV. |
| RIGHT SIDE ELEV. |
| CROSS SECTION |
| Balcony |
| Balcony |